东易力天工装
全国服务热线:
13673369777
当前位置:首页>>极易原创>>极易家装案例
郑州别墅装修幸福滨水家园
作者:东易力天装饰 浏览量:4236次 发布日期:2018-08-31 15:41:20
        东易力天郑州别墅装修新中式案例:东航幸福滨水家园
        设计风格:新中式
        设计主题:唐宋遗风
        设计说明:本案是专为针对郑州东航幸福滨水家园一业主设计的具有唐、宋文化结合的新中式风格案例,本案设计舍弃了一部分较为繁琐的装饰修边,用简练优美的线条展现古朴悠远的禅意意境,保留了现代“中式”家居设计应有的文化内涵。居于其中,会让业主参透禅宗中的“即心即佛、解脱自我、无欲无求、浑然天成、彻见本性”的禅意生活,蕴含着东方的智慧,包含着对生命和心灵的感悟,以及真实生活的追求,让人们的生活潇洒超脱,宁静幽远......
 
        在东易力天郑州别墅装修设计总监崔远翔看来,该中式设计中融入禅宗美学思想,用简约代替繁杂、用自然代替造作,用宁静代替喧嚣,以“自然、沉静、朴素”的禅韵,赋予了中式设计新的空间内涵。它不仅是中式室内设计追求的一种至高境界,也是现代人创造空灵、简朴意境的心灵驿站。“豪放”与“婉约”美学的和谐交融,线形、色调以及家具、陈设的造型方面,吸取传统装饰“宋形”“唐韵”的特点,文人气息浓郁,禅意悠悠。又结合了一些现代元素展开设计,比较完美地契和了东航幸福滨水家园业主的生活方式及审美取向。
唐宋遗风-物料样块
郑州别墅装修幸福滨水家园
  
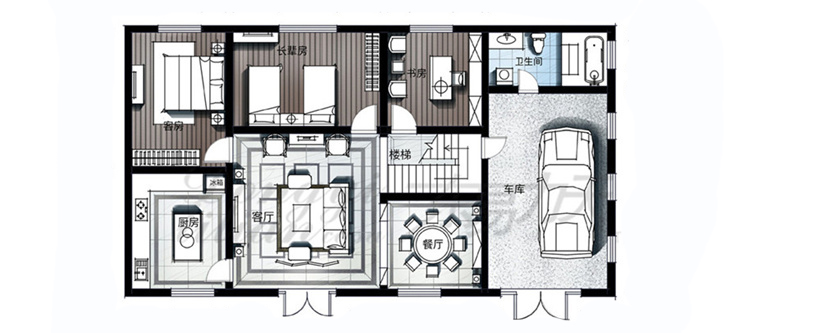
一层平面规划布局图
郑州别墅装修幸福滨水家园

  
一楼客厅草图
郑州别墅装修幸福滨水家园
  
一楼客厅端景方案
 郑州别墅装修幸福滨水家园
 
一楼餐厅方案
 郑州别墅装修幸福滨水家园
  
一楼洗手间
 郑州别墅装修幸福滨水家园

二楼平面规划布局图
 郑州别墅装修幸福滨水家园
 
二楼起居室草图方案
 郑州别墅装修幸福滨水家园
 
二楼起居室方案
 郑州别墅装修幸福滨水家园
  
二楼茶厅方案
 郑州别墅装修幸福滨水家园
 
二楼主卧方案
 郑州别墅装修幸福滨水家园
 
二楼卫生间
 郑州别墅装修幸福滨水家园
 
二楼次卧方案
 郑州别墅装修幸福滨水家园
  
      东易力天装饰 | 郑州别墅装修原创设计师   崔远翔     从业经验:10年
      本案例的中式禅意空间设计,通过文化创意的中式设计凸显对禅宗文化的传承,并融入现代生活情趣,呈现给东航幸福滨水家园业主一种自然闲适的设计特色;追求艺术设计中的优美与宁静,丰富设计语言表现的感染力,开阔设计角度的观照视野。使外在禅境与内心的禅境相互映照契合,从而让人们在本真中领悟禅之要义--身心皆融入禅的简素和清寂的精神中,入禅入静,返璞归真,让心皈依简单,平静宁和。
选择您的装修风格
选择合适的户型
选择您的装修面积
扫一扫 QQ在线咨询
扫一扫 关注官方微信
在线客服预约装修装修报价

小程序扫一扫QQ在线咨询

社群扫一扫关注官方微信