东易力天工装
全国服务热线:
13673369777
当前位置:首页>>极易原创>>极易家装案例
东易力天装饰简欧
作者:东易力天装饰 浏览量:2345次 发布日期:2017-11-25 17:02:35
东易力天装饰简欧
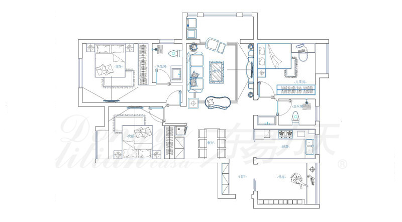
       东易力天装饰简欧四居室设计案例,装修规模:160㎡
       设计说明:整体以香槟色+绿色系搭配糅合装饰,如此暖色系打造的欧式风格,华丽与低调的结合!
       本案客厅装修效果自带轻奢华丽感,欧式风格的壁纸装修,带有西方复古图案、线条以及西化造型的皮质沙发,带有欧式精细曲线或图案的餐厅桌椅,让整个客厅看起来很有档次!
平面效果图
东易力天装饰简欧
入门玄关
东易力天装饰简欧
       入门玄关设计有讲究,东易力天装饰设计师将其装修成做成衣帽间,有了封闭式和敞开式壁柜,再也不怕入门处鞋子衣服包包乱放,超赞!
客厅效果图
东易力天装饰简欧
       客餐厅一体吊顶当作一个统一的空间,让空间显得更加恢宏大气!再加上璀璨的水晶灯、大气舒适的软装,欧式罗马拱形门,整体营造出一种奢华、高雅的不凡气质。
书房效果图
东易力天装饰简欧
       欧式自由流畅的线条、舒适现代的木质家具,令书房犹如一个美丽而优雅的名媛。书房嵌入式壁柜的设计,充分增加了收纳空间!书房落地飘窗设计,是增加室内光线的好办法!
主卧效果图
东易力天装饰简欧
       本案卧室背景墙东易力天装饰采用皮质软包装修,提高安全感和舒适度。软包背景墙的工艺和材料都比较特殊,对整个家居空间的档次有极大的提升,奢华宜居!
上一篇:简欧

下一篇:郑州家装公司排名
选择您的装修风格
选择合适的户型
选择您的装修面积
扫一扫 QQ在线咨询
扫一扫 关注官方微信
在线客服预约装修装修报价

小程序扫一扫QQ在线咨询

社群扫一扫关注官方微信