东易力天工装
全国服务热线:
13673369777
当前位置:首页>>新闻资讯>>公司新闻

郑州装修公司|宏光蓝水岸135㎡简欧

作者:东易力天装饰 浏览量:787次 发布日期:2019-01-08 16:36:29
    以简洁的表现形式来满足人们对空间环境那种感性的、本能的和理性的需求。
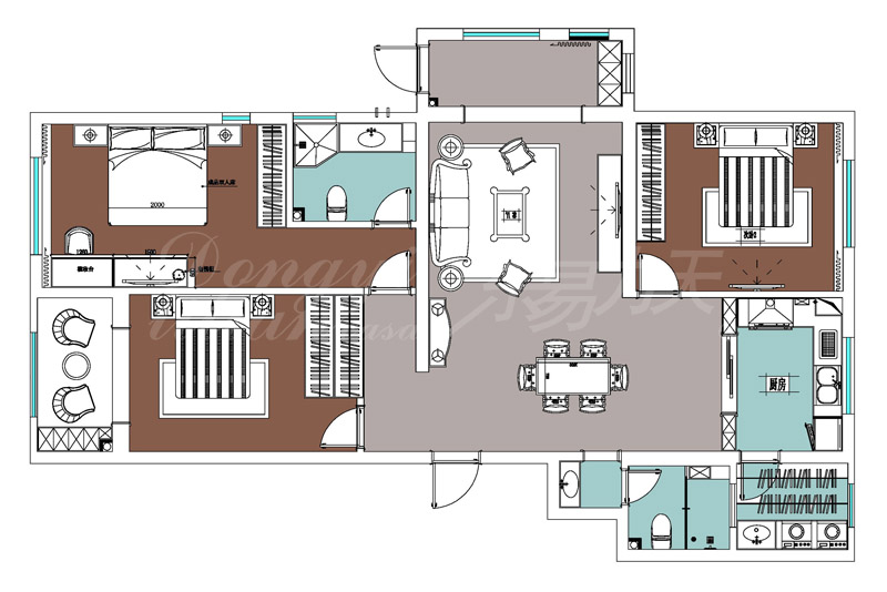
郑州装饰公司|东易力天装饰
郑州装修公司|宏光蓝水岸-简欧-户型图
郑州装饰公司|东易力天装饰
郑州装修公司|宏光蓝水岸-简欧-客厅
郑州装饰公司|东易力天装饰
郑州装修公司|宏光蓝水岸-简欧-阳台
    将设计的元素及色彩简化到*少的程度,提升色彩、材料的质感。
郑州装饰公司|东易力天装饰
郑州装修公司|宏光蓝水岸-简欧-客餐厅
郑州装饰公司|东易力天装饰
郑州装修公司|宏光蓝水岸-简欧-主卧
    简约的空间设计非常含蓄,达到以少胜多、以简胜繁的效果。
郑州装饰公司|东易力天装饰
郑州装修公司|宏光蓝水岸-简欧-儿童房
郑州装饰公司|东易力天装饰
郑州装修公司|宏光蓝水岸-简欧-卫生间

新闻推荐

扫一扫 QQ在线咨询
扫一扫 关注官方微信
在线客服预约装修装修报价

小程序扫一扫QQ在线咨询

社群扫一扫关注官方微信