东易力天工装
全国服务热线:
13673369777
当前位置:首页>>新闻资讯>>公司新闻

郑州装修公司港式新古典混搭大三室案例,轻奢生活,宜室家

作者:东易力天装饰 浏览量:580次 发布日期:2018-09-16 16:38:45
郑州装修公司港式新古典混搭大三室案例,轻奢生活,宜室家
      “之子于归,宜室宜家” 看到郑州装修公司这套港式新古典大三室装修效果图,脑海中忽然迸现这句话。
      秋风萧瑟,层林尽染, 而“热”是夏的温度,“瑟”是秋的象征,在每个季节,我们总希望能够撞见“绿”,邂逅“凉”~~
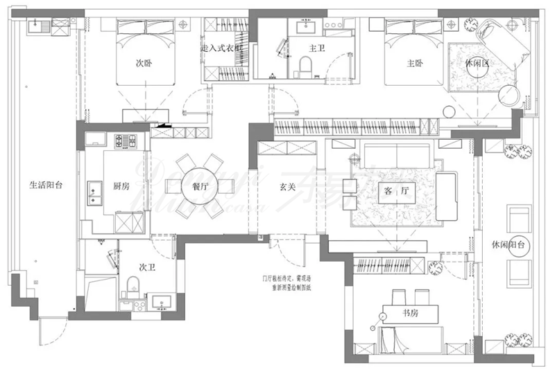
平面布局图
郑州装修公司港式新古典混搭大三室案例,轻奢生活,宜室家

      有时候,触发我们对家*初期待的,或许不是某个人的出现,而是郑州装修公司设计师对一件“家具”雕刻,对一套“装修”效果图渲染....设计理念深处对“家”的勾勒与赞美,让我们眼睛美了,也醉了....
郑州装修公司港式新古典混搭大三室案例,轻奢生活,宜室家
      郑州装修公司在客厅色调控制上,钴蓝、灰色、香槟色为主色调,冷灰色中的一抹蓝,并不激烈的刻画出空间的睿智与魅力,彰显出不可抵挡的生命朝气与自然。
      复古金属仿佛有隐隐流光,点亮了整个空间的色彩,舞动在空气里,带着风般的清凉和青春的炙热。
郑州装修公司港式新古典混搭大三室案例,轻奢生活,宜室家
       格调清新,俊逸悠远,简洁优雅,给空间带来不同角度的美。从视觉到触觉,让延伸,触及到家的每一个角落。用*挑剔的眼光,诠释完美的定义,匠心与品质。 
郑州装修公司港式新古典混搭大三室案例,轻奢生活,宜室家
      皎洁白拥抱着松石绿,在空间中演绎出卓越的年轻时尚气质。
郑州装修公司港式新古典混搭大三室案例,轻奢生活,宜室家

郑州装修公司港式新古典混搭大三室案例,轻奢生活,宜室家
      郑州装修公司在餐厅与客厅设计上,将中轴对称发挥到了极致。半封闭设计没有拘束感,同时确保了功能区的相对独立性。而不锈钢,玻璃,岩石,实木的材质对比,既增强了现代感又不失整体的氛围。
郑州装修公司港式新古典混搭大三室案例,轻奢生活,宜室家

郑州装修公司港式新古典混搭大三室案例,轻奢生活,宜室家
      老人房,舒怡的视觉呈现,足以在第一眼捕获人的欢心。米白和暖灰奠定了整个空间清新干净的基调,棕色与金属色提升了空间明度,自带时尚优雅。阳光入室,墙壁上的树木墨画更为深刻,意境深深,更添岁月意蕴。
郑州装修公司港式新古典混搭大三室案例,轻奢生活,宜室家

郑州装修公司港式新古典混搭大三室案例,轻奢生活,宜室家

郑州装修公司港式新古典混搭大三室案例,轻奢生活,宜室家
      郑州装修公司在老人房设计上延续客厅外部格调,*大程度利用自然光。一杯清茶,一本好书,沐浴阳光,享受生活*惬的美好......

新闻推荐

扫一扫 QQ在线咨询
扫一扫 关注官方微信
在线客服预约装修装修报价

小程序扫一扫QQ在线咨询

社群扫一扫关注官方微信